4148 Drummond Road Niagara Falls, Ontario L2E 6B9

1,162 ft2
Fully Air Conditioned Radiant Heat, Hot Water Radiator Heat

$575,000

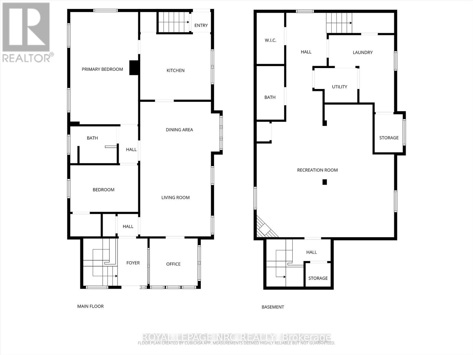
Unique opportunity. Very well maintained brick bungalow with finished basement, currently used as a residential dwelling, yet features a General Commercial Zoning. This zoning permits a wide variety of commercial uses and would be ideal for a home business or professional office. Current layout features beautiful hardwood floors and wood trim, stained glass windows and features a very large master bedroom, bright kitchen, office, second bedroom and modern 3 piece bathroom. The basement has a comfortable open concept recreation room and also features a 1-3 piece bathroom and laundry area with potentially separate entrance if you're envisioning thoughts towards in-law suite. This home shares the amenities of the highly desirable Stamford Centre District and Cherrywood district of Niagara Falls and is just a few minutes' drive or walk to great neighbourhood plazas and restaurants. Quick access to the QEW. (id:53712)

Property Details

MLS® Number X13030224
Property Type Office
Community Name 211 - Cherrywood
Parking Space Total 3

Building

Appliances Dishwasher, Dryer, Furniture, Washer, Window Coverings
Cooling Type Fully Air Conditioned
Heating Fuel Natural Gas
Heating Type Radiant Heat, Hot Water Radiator Heat
Size Exterior 1162 Sqft
Size Interior 1,162 Ft2
Type Offices
Utility Water Municipal Water

Land

Acreage No
Sewer Sanitary Sewer
Size Depth 91 Ft ,3 In
Size Frontage 50 Ft
Size Irregular Bldg=50 X 91.3 Ft
Size Total Text Bldg=50 X 91.3 Ft
Zoning Description Gc-general Commercial

https://www.realtor.ca/real-estate/29640328/4148-drummond-road-niagara-falls-cherrywood-211-cherrywood

Contact Us

Contact us for more information

Ron Ellens
Salesperson

(905) 933-2170

Royal LePage NRC Realty
33 Maywood Ave
St. Catharines, Ontario L2R 1C5

(905) 688-4561
www.nrcrealty.ca/

Ben Ellens
Salesperson

(289) 407-3566

Royal LePage NRC Realty
33 Maywood Ave
St. Catharines, Ontario L2R 1C5

(905) 688-4561
www.nrcrealty.ca/

Your Favourites

 

No Favourites Found