Maintenance, Common Area Maintenance, Water, Insurance, Cable TV
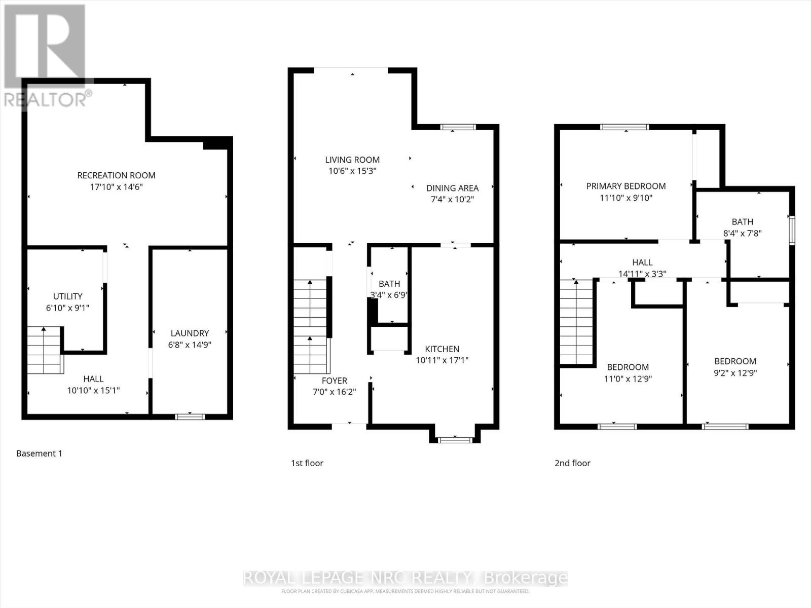
$360 MonthlyWelcome to this charming 1200 square foot end unit townhome conveniently located in Century Village. Featuring 3 well sized bedrooms and 1.5 bathrooms. The main floor offers a beautifully updated walkthrough kitchen with extra cabinets, adjacent open dining area, a well proportioned living room with patio door access to your private rear patio and an updated 2 piece bathroom. The upper floor includes 3 good sized bedrooms and a fully renovated bathoom with walk-in shower. The modern fully finished lower level includes a spacious recroom, laundry and the utility room. Parking is conveniently located right in front of this unit. The affordable $360.00 condominium fees include water, cable, common area maintenance and condominium insurance. Owner averages under $100/month for gas & hydro. Century Village is located in a desirable North end a short distance to Port Dalhousie's Lakeside Park beach, Waterfront walking trail, Port Weller's Sunset beach, the Welland Canal trail and many other great amenities like shopping and easy QEW access. (id:53712)
| MLS® Number | X12847474 |
| Property Type | Single Family |
| Community Name | 443 - Lakeport |
| Community Features | Pets Allowed With Restrictions |
| Equipment Type | Water Heater |
| Parking Space Total | 1 |
| Rental Equipment Type | Water Heater |
| Structure | Patio(s) |
| Bathroom Total | 2 |
| Bedrooms Above Ground | 3 |
| Bedrooms Total | 3 |
| Age | 31 To 50 Years |
| Amenities | Visitor Parking |
| Appliances | Water Heater, Dishwasher, Dryer, Microwave, Stove, Washer, Refrigerator |
| Basement Development | Finished |
| Basement Type | Full (finished) |
| Cooling Type | Central Air Conditioning |
| Exterior Finish | Brick, Vinyl Siding |
| Flooring Type | Vinyl |
| Foundation Type | Poured Concrete |
| Half Bath Total | 1 |
| Heating Fuel | Natural Gas |
| Heating Type | Forced Air |
| Stories Total | 2 |
| Size Interior | 1,000 - 1,199 Ft2 |
| Type | Row / Townhouse |
| No Garage |
| Acreage | No |
| Zoning Description | R3 |
| Level | Type | Length | Width | Dimensions |
|---|---|---|---|---|
| Second Level | Primary Bedroom | 3.61 m | 3 m | 3.61 m x 3 m |
| Second Level | Bedroom 2 | 3.88 m | 3.35 m | 3.88 m x 3.35 m |
| Second Level | Bedroom 3 | 3.88 m | 2.8 m | 3.88 m x 2.8 m |
| Basement | Recreational, Games Room | 5.45 m | 4.41 m | 5.45 m x 4.41 m |
| Basement | Laundry Room | 4.49 m | 2.04 m | 4.49 m x 2.04 m |
| Basement | Utility Room | 2.77 m | 2.07 m | 2.77 m x 2.07 m |
| Main Level | Living Room | 4.64 m | 3.2 m | 4.64 m x 3.2 m |
| Main Level | Dining Room | 3.1 m | 2.24 m | 3.1 m x 2.24 m |
| Main Level | Kitchen | 5.19 m | 3.31 m | 5.19 m x 3.31 m |
https://www.realtor.ca/real-estate/29430531/18-242-lakeport-road-st-catharines-lakeport-443-lakeport
Contact us for more information
Keith Moore
Salesperson
(905) 688-4561
www.nrcrealty.ca/